Exhibit 10.23

 

SECOND AMENDMENT TO STANDARD INDUSTRIAL/COMERCIAL MULTI-TENANT LEASE - GROSS

 

THIS SECOND AMENDMENT TO STANDARD INDUSTRIAL/COMERCIAL MULTI-TENANT LEASE - GROSS is made and entered into at Santa Maria, California dated the 20th day of March, 2021, for reference purposes only, by and between Columbia Business Center Partners L.P., a California limited partnership (“Lessor”), and BWSC, LLC, a California limited liability company DBA WINC (“Lessee”), with reference to the following facts:

 

A. Lessor (or Lessor’s predecessor in interest) and Lessee previously entered into that certain Standard Industrial/Commercial Multi-Tenant Lease-Gross, dated May 15, 2019, for reference purposes only, regarding that certain Premises, located at 860 E. Stowell Road, Santa Maria, CA 93454, as it was amended by that certain First Amendment to Standard Industrial/Commercial Multi-Tenant Lease - Gross, dated September 10, 2020 (collectively, the “Lease”);

 

B. The Lease Term currently expires on December 31, 2021;

 

C. Lessee has requested an extension to the current Lease Term, as well as an expansion to the Premises, and Lessor is willing to extend the Expiration Date of the Lease Term and to lease to Lessee additional space such that the “Premises” shall become that certain Premises consisting of 60,584 sf assigned to two addresses, 860 and 862 East Stowell Road, Santa Maria, CA 93454, as depicted on Exhibit A attached hereto and incorporated herein by this reference, all in accordance with the terms and conditions contained in this Second Amendment.

 

NOW, THEREFORE, in consideration of the premises, promises and covenants herein contained, the parties agree as follows:

 

1.Capitalized Terms. Except as to those capitalized terms specifically defined herein, all capitalized terms shall be as provided in the Lease.

 

2.Premises. Commencing May 1, 2021, Lessor shall deliver possession of additional space in the Building, which additional space shall be added to the “Premises,” and thereafter, the total Premises shall consist of a space 60,584 SF in size as depicted on Exhibit A attached hereto. The parties acknowledge and agree that the formal addresses of the Premises as assigned to the Premises by the City of Santa Maria, California are 860 and 862 E. Stowell Road, Santa Maria, CA 93454. At Lessor’s option, Lessor shall demise the Premises from the remaining premises in the Building by either a chain link fence or a solid wall. Lessee shall cooperate with Lessor’s installation of a demising wall, including cooperation with reasonable intrusion into the Premises during construction of such a wall. There shall be no abatement of Base Rent for any such intrusion. In no event during any such installation shall Lessor materially obstruct Lessee’s access for ingress and egress to and from the Premises.

 

 

 

 

 

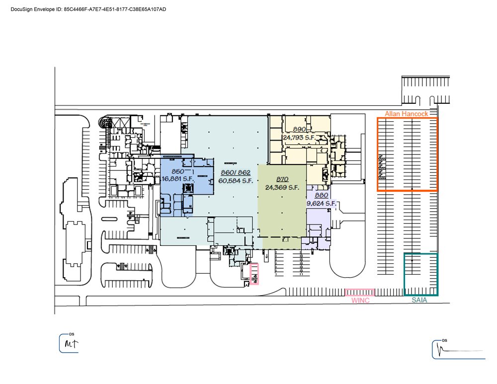
3.Parking. Paragraph 1.2(b) of the Lease shall be modified such that Lessee shall have the use of ten (10) parking spaces in the parking area shown on Exhibit B - Project Site Plan attached hereto.

 

4.Base Rent Increase. From May 1, 2021 through May 31, 2021, the Base Rent shall remain the same as it is for the month of April, 2021. Commencing June 1, 2021, the Base Rent for the Premises shall be increased to THIRTY-SEVEN THOUSAND FIVE HUNDRED SIXTY-TWO AND 00/100 DOLLARS ($37,562) per month.

 

5.Rent Adjustments. Effective January 1, 2022, and on January 1 of each ensuing year during the Lease Term, the Base Rent shall be increased in accordance with the increase in the consumer price index as provided on Exhibit C attached hereto and incorporated herein by this reference.

 

6.Automatic Extension of Lease Term. The expiration of the Lease Term shall hereby be extended from December 31, 2021 to December 31, 2023. Notwithstanding the preceding, in the event the Lessee does not notify Lessor in writing (“Termination Notification”) on or before March 31, 2023, confirming that the Lease shall expire on December 31, 2023, the Lease Term shall automatically and immediately be extended through December 31, 2024. Thereafter, in the event that Lessee does not give the Termination Notice on or before March 31 of each ensuing calendar year, the Lease Term shall automatically and immediately be extended through December 31 of the following calendar year. For example, if the Lease Term has been previously extended through December 31, 2024 and Lessee does not give the Termination Notice on or before March 31, 2024, the Lease Term shall automatically and immediately be extended through December 31, 2025.

 

7.       Tenant Improvement Allowance; Lessor’s Work.

 

a.Lessor shall, on or before May 1, 2021, make a lump sum payment to Lessee in the amount of FIFTY THOUSAND AND 00/100 DOLLARS ($50,000.00) for office remodel, and/or dock space or other repairs to be made by Lessee, subject to the requirements of Paragraphs 7.3 and 55, if applicable.

 

b.Notwithstanding that the additional Premises is being delivered to Lessee “AS -IS and WITH ALL FAULTS,” Lessor shall warranty that on May 1, 2021, all plumbing fixtures (i.e., sinks and toilets) located in the bathrooms in the office area of the additional Premises are in proper working order.

 

c.The bathrooms located in the office area of the additional Premises are for the sole use of Lessee.

 

8.Utilities. In accordance with Paragraph 11 of the Lease, Lessee shall pay for all utilities and services serving the Premises. The Premises may be served by one or more meters for each utility service; provided, however, such meters may not serve only the Premises. For each utility meter jointly serving the Premises and other premises in the Building, Lessor may either submeter such meter(s) to measure only use within the Premises in order to bill Lessee accordingly or may alternatively make a reasonable allocation to Lessee of the total monthly utility costs through such meter(s). Additionally, Lessee agrees to the provisions reserving

 

 

 2 

 

 

Lessor’s rights for solar installations and management services as provided for in Exhibit D attached hereto and incorporated herein by this reference.

 

9.Supersession. The terms and provisions of this Second Amendment shall prevail over any contrary terms of the existing Lease. Except as specifically modified hereunder, the Lease remains unmodified and in full force and effect.

 

ENTERED INTO at Santa Maria, California, effective on the date first above written.

 

“LESSOR”     “LESSEE”
       
Columbia Business Center Partners L.P.,     BWSC, LLC, a California
A California limited partnership     limited liability company DBA WINC
         
By: Columbia Business Center, Inc.   By: /s/ Matt Thelen
  A California corporation      
      Name:  Matt Thelen
By: /s/ Robin l. Rossi  
  Robin l. Rossi, President   Title:   General  Counsel

 

 

 3 

 

  

EXHIBIT A

 

TO

 

SECOND AMENDMENT TO STANDARD INDUSTRIAL/COMERCIAL MULTI-TENANT LEASE - GROSS

 

Depiction of Premises

 

  

 

 

 

 

 

 

 

EXHIBIT B

 

TO

 


SECOND AMENDMENT TO STANDARD INDUSTRIAL/COMERCIAL MULTI-TENANT LEASE - GROSS

 

Project Site Plan

(Including Parking)

 

  

 

 

 

 

 

 

 

 

EXHIBIT C

 

TO

 

SECOND AMENDMENT TO STANDARD INDUSTRIAL/COMERCIAL MULTI-TENANT LEASE - GROSS

 

Base Rent Adjustments

 

 

 

 

 

 

 

 

 

         
         
         
         
         
         
         
         
         
         

 

B. NOTICE

 

Unless specified otherwise herein, notice of any rental adjustments, other than Fixed Rental Adjustments, shall be made as specified in paragraph 23 of the Lease.

 

AIR CRE * https://www.aircre.com * 213-687-8777 * contracts@aircre.com
NOTICE: No part of these works may be reproduced in any form without permission in writing.

 

 

___________ ___________
___________ ___________

INITIALS

© 2017 AIR CRE. All Rights Reserved.

RA-7.03, Revised 10-22-2020

INITIALS

Last Edited: 3/17/2021 12:54 PM

Page 2 of 2

 

 

 

 

EXHIBIT D

 

TO

 

SECOND AMENDMENT TO STANDARD INDUSTRIAL/COMERCIAL MULTI-TENANT LEASE - GROSS

 

Reserved Right for Solar Installations and Management Services

 

   

 

 

 

EXHIBIT D

 

Reserved Right for Solar Installations and Management Services

 

A.       With no obligation to install, Lessor shall have the right to install, maintain, repair and remove solar photo voltaic systems (“Solar Systems”) on the roof of any Building or common area of the Project at any time during the Lease, in locations otherwise acceptable to Lessor. Any installation will be performed in a manner that minimizes interference with parking for the Project or Lessee’s use and business operations in the Premises. The cost to operate, repair and maintain the Solar Systems shall be included in Common Area Operating Expenses.

 

B.       Notwithstanding that Lessee does not otherwise pay a separate share of Common Area Operating Expenses under this Lease, Lessee shall be entitled to access electricity through the Solar System with net metering as required by the applicable utility serving the Premises (“Utility”) as long as Lessee is a tenant, is not otherwise in default of the leases and agrees to pay a pro rata portion of the costs to operate, repair and maintain the Solar Systems based on the relative square footage of those tenants of the Project using the Solar Systems; provided, (a) financing is arranged through the PACE program (or any successor equivalent program) and cost assessed through Real Estate Tax assessments, with Lessee paying Lessee’s Share; or (b) Lessee otherwise agrees to participate in Lessee’s Discount Program through an electricity discount servicing agreement (“Discount Agreement”) with Lessor through which Lessor applies “net metering” clean energy bill credits (“Credits”) to Lessee’s electrical bills based on Lessee’s allocation of electricity produced by the Solar System. For every dollar of Credits Lessee receives from the Utility attributable to the Solar System, Lessee shall pay Lessor not more than ninety-five (95) cents for Lessor’s Services under the Discount Agreement. Lessor will not invoice or charge Lessee for any 3rd-party fees or charges directly associated with Lessee’s participation in the Credit program if those fees or charges would not have otherwise been incurred as part of Lessee’s normal electric service provided by Utility.

 

C.       Under the Discount Agreement, Lessor will instruct the Utility to apply certain “net metering” clean energy bill credits (“Credits”) to Lessee’s utility bills based on Lessor’s allocation of electricity produced by the Solar System. For every dollar of Credits Lessee receives from its Utility attributable to the Solar System, Lessee agrees to pay Lessor no more than ninety-five (95) cents for the services provided under the Discount Agreement. Lessor will not invoice or charge Lessee for any 3rd-party fees or charges directly associated with Lessee participation in the Discount Program if those fees or charges would not have otherwise been incurred as part of Lessee’s normal electric service provided by Utility.

 

  

 

 

 

D.       Lessee shall designate Lessor to provide the following through the Discount Agreement in order to arrange metered utility service for Lessee (i) participating in a solar net metering program, under the terms of a virtual net metering or net metering rate tariff offered by the Utility deemed reasonably necessary to provide the Services, which may include: (i) participating in a solar net metering program on behalf of Subscriber under the terms of a virtual net metering or net metering rate tariff offered by Utility (“Solar Program”), (ii) allocating some of the actual net electrical production (both kWh and in kW) of the Solar System Lessee (“Allocation”), (iii) reporting details about the Allocation to Utility, (iv) managing and administering Lessee’s electric service billing account(s) with Utility, and, (v) at Lessor’s option, making payments to Utility for the benefit of Lessee. Lessee agrees to designate Lessor as agent under any agency agreement or other authorization required by Utility for Lessor to provide these services. Lessee shall also provide such information, execute and deliver any instruments and documents, and take such other actions as may be reasonably requested by Lessor to implement the Discount Agreement which do not involve the assumptions of obligations other than those related to managing and delivering the services. The authorization granted by Lessee shall allow Lessor, among other things, to instruct the Utility to allocate Credits to Lessee’s electricity bills based on the Allocation (“Allocated Credits”).

 

E.       In lieu of PACE financing or if changes in the Utility’s regulations, tariffs or rulings prevent Lessor from offering its Discount Program, Lessee agrees to instead to pay Lessor a Green Surcharge, which amount shall be determined by Lessor each year in advance and provided to all tenants, based on a formula including the RSF of each premises, type of use and equipment installed, and any tenant improvement investment in green energy.