LEASE AGREEMENT BETWEEN
EPC-CW15, LLC,
a Texas limited liability company,
AS LANDLORD, AND
MASTECH DIGITAL, INC.,
a Pennsylvania corporation,
AS TENANT
EFFECTIVE DATE: MARCH 5, 2026
PROJECT: 3300 OLYMPUS BOULEVARD
DALLAS, TEXAS
LEASE AGREEMENT BETWEEN
EPC-CW15, LLC,
a Texas limited liability company,
AS LANDLORD, AND
MASTECH DIGITAL, INC.,
a Pennsylvania corporation,
AS TENANT
EFFECTIVE DATE: MARCH 5, 2026
PROJECT: 3300 OLYMPUS BOULEVARD
DALLAS, TEXAS
OFFICE LEASE AGREEMENT (BASIC LEASE INFORMATION) Page i
Billingsley Office Lease Form 2025.12
BASIC LEASE INFORMATION
Effective Date: |
As listed on the cover page |
||
Landlord: |
As listed on the cover page |
||
Tenant: |
As listed on the cover page |
||
Tenant's Organizational Identification Number: |
3815502, as assigned by the Pennsylvania Secretary of State |
||
Premises: |
Suite No. 560, containing 5,895 rentable square feet, in the office building whose street address is 3300 Olympus Boulevard, Dallas, Texas 75019 (the "Building"). The Premises is diagonally hatched on the plan attached to the Lease as Exhibit A. The land on which the Building is located (the "Land") is described on Exhibit B. The term "Project" shall collectively refer to the Building, the Land and the driveways, parking facilities, and similar improvements and easements associated with the foregoing or the operation thereof. |
||
Term: |
The period beginning on the Commencement Date and ending at 11:59 p.m. local time on the last day of the 60th full calendar month following the Abatement Period, subject to adjustment and earlier termination as provided in the Lease. |
||
Commencement Date: |
The earliest of (a) the date on which Tenant occupies any portion of the Premises and begins conducting business therein, (b) the date on which the Work (as defined in Exhibit D hereto) in the Premises is Substantially Completed (as defined in Exhibit D hereto), (c) the date on which the Work in the Premises would have been Substantially Completed but for the occurrence of any Tenant Delay Days (as defined in Exhibit D hereto), or (d) July 1, 2026. |
||
Estimated Delivery Date: |
August 24, 2026 |
||
Abatement Period: |
The first 152 days (i.e., the equivalent of five full calendar months) after (and including) the Commencement Date. |
||
Basic Rent: |
Basic Rent shall be the following amounts for the following periods of time: |
||
|
Lease Month |
Annual Basic Rent Rate Per Rentable Square Foot |
Monthly Basic Rent |
|
Abatement Period |
Abated |
Abated |
|
1 - 12 |
$37.00 |
$18,176.25 |
|
13 - 24 |
$38.02 |
$18,677.33 |
|
25 - 36 |
$39.07 |
$19,193.14 |
|
37 - 48 |
$40.14 |
$19,718.78 |
|
49 - 60 |
$41.24 |
$20,259.15 |
OFFICE LEASE AGREEMENT (BASIC LEASE INFORMATION) |
Page 1 |
|
As used herein, the term "Lease Month" means each calendar month beginning on the first day after the end of the Abatement Period (and if the first Lease Month does not begin on the first day of a calendar month, the first Lease Month shall include the balance of such partial month and also include the entirety of the first full calendar month thereafter for purposes of determining the duration of the Term and the monthly Basic Rent rate applicable for such partial month). |
|
Security Deposit: |
$26,031.34. |
|
Rent: |
Basic Rent, Tenant's Proportionate Share of Electrical Costs, Tenant's share of Additional Rent, and all other sums that Tenant may owe to Landlord or otherwise be required to pay under the Lease. |
|
Payment of first month's Rent: |
At Lease execution. |
|
Permitted Use: |
General office use. |
|
Tenant's Proportionate Share: |
1.9440%, which is the percentage obtained by dividing (a) the number of rentable square feet in the Premises as stated above by (b) the 303,248 rentable square feet in the Building. Landlord and Tenant stipulate that the number of rentable square feet in the Premises and in the Building set forth above is conclusive and shall be binding upon them. |
|
Building Business Hours: |
7:00 a.m. to 6:00 p.m. on weekdays (other than Building Holidays) |
|
Initial Liability Insurance Amount: |
$3,000,000 per occurrence |
|
Comparable Buildings: |
Class A Suburban office buildings in the Las Colinas / Irving area |
|
Tenant's Address: |
Mastech Digital, Inc. |
|
Landlord's Address: |
For all Notices: Billingsley Property Services II, Inc. |
With a copy to: Billingsley Property Services II, Inc. |
Tenant's Insurance / Risk Management Contact: |
Mabel Kime |
|
OFFICE LEASE AGREEMENT (BASIC LEASE INFORMATION) |
Page 2 |
The foregoing Basic Lease Information is incorporated into and made a part of the Lease identified above. If any conflict exists between any Basic Lease Information and the Lease, then the Lease shall control.
OFFICE LEASE AGREEMENT (BASIC LEASE INFORMATION) |
Page 3 |
LEASE
This Lease Agreement (this "Lease") is entered into as of the Effective Date between Landlord and Tenant (each as defined in the Basic Lease Information).
OFFICE LEASE AGREEMENT (BASIC LEASE INFORMATION) |
Page 4 |
Notwithstanding the foregoing or any other provision of this Lease to the contrary, however, Operating Costs shall not include costs for (i) capital improvements, repairs and other capital items, other than capital improvements to the Project which are described in Section 4(b)(2)(C) and except for items which are generally considered maintenance and repair items, such as painting of common areas, replacement of carpet in elevator lobbies, and the like; (ii) repair, replacements and general maintenance paid by proceeds of insurance or by Tenant or other third parties; (iii) interest, amortization or other payments on loans to Landlord; (iv) depreciation; (v) leasing commissions; (vi) legal expenses for services, other than those that benefit the Project tenants generally (e.g., tax disputes); (vii) renovating or otherwise improving space for occupants of the Project or vacant space in the Project; (viii) federal income taxes imposed on or measured by the net income of Landlord from the operation of the Project, or any taxes not included within Taxes pursuant to this Lease; (ix) the costs of special services rendered to tenants (including Tenant) for which a special or separate charge is made or which are for the benefit of a specific tenant (including Tenant) but not all tenants of the Building; (x) costs associated with the operation of the business or legal entity that constitutes the Landlord, as the same are distinguished from the costs of Project operations, including, but not limited to, general overhead and administrative expenses, costs of accounting and legal matters, and costs of selling, syndicating, financing, mortgaging or hypothecating any of the Landlord's interest in the Project; (xi) wages, salaries, fees and fringe benefits of any employee who does not devote substantially all of his/her employed time to the Building, unless such wages and benefits are pro-rated to reflect time spent on operating and managing the Building vis-à-vis time spent on matters unrelated to operating and managing the Building; (xii) other than the management fee (which is capped as provided above) overhead and profit increment paid to Landlord or to Affiliates of Landlord, and costs, for goods and/or services to the Project to the extent that the costs of such goods and/or services exceeds the costs that would have been paid had the goods and/or services been provided by unaffiliated third parties on a competitive basis; (xiii) costs incurred by Landlord in order to comply with the requirements for obtaining or renewing a certificate of occupancy for the Project or any space therein; (xiv) cash or other consideration paid by Landlord in lieu of the tenant improvement work or alterations; (xv) marketing and leasing costs, including, without limitation, attorneys' fees in connection with the negotiation and preparation of letters, deal memos, letters of intent, leases, subleases and/or assignments, space planning costs, and other costs and expenses incurred in connection with lease, sublease and/or assignment negotiations and transactions with Tenant or prospective tenants or other occupants of the Project; (xvi) advertising and promotional expenditures; (xvii) rental "takeover expenses" or other obligations that Landlord pays or assumes in connection with the leasing of space in the Project, including, but not limited to, any expenses incurred by Landlord with
OFFICE LEASE AGREEMENT (BASIC LEASE INFORMATION) |
Page 5 |
respect to space located in a building other than the Building; (xviii) inducement or "sign-up" payments paid to tenants for signing new leases for space at the Project, or for the exercise of options under existing leases; (xix) costs arising from the presence of Hazardous Materials and hazardous substances in, on or about the Project not placed, released or stored there by Tenant or any Tenant Party; (xx) costs arising due to any disputes between Landlord and its employees, Project management, or with any tenant; (xxi) costs incurred to provide services and utilities and taxes attributable to the operation of retail and restaurant operations in the Project; (xxii) rentals and other expenses for any management or leasing offices, other than rentals for the on-site Building management office or a single consolidated management or leasing office for the Complex; (xxiii) costs incurred in removing any ex-tenant's property from the Project; (xxiv) costs associated with the installation, maintenance and removal of any signage associated with the Building identifying the owner or management agent of the Building; (xxv) costs of constructing, installing, operating or maintaining any special service or facility not contemplated by this Lease, such as a retail store, newsstand, broadcasting facility, luncheon club, recreational club, cafeteria or dining facility; (xxvi) acquisition costs, rental costs, and installation costs (as contrasted with the maintenance) of sculptures, paintings, or other objects of art, whether for interior or exterior use; (xxvii) costs, fees, dues, voluntary contributions or similar expenses for political or charitable organizations; (xxviii) fees, costs, disbursements and other expenses incurred in connection with the defense of Landlord's title to or interest in the Project; (xxix) reserves for future improvements, repairs or additions; (xxx) reserves for equipment or capital replacement; (xxxi) collection costs, including legal fees, bad debt losses or rental losses, or reserves for bad debt or rental losses; (xxxii) costs, expenses or compensation, including taxes and benefits, paid to clerks, attendants, concierges or other persons working in or managing commercial concessions operated by Landlord or the Project's manager; (xxxiii) utility services for which any tenant of the Project directly contracts with the utility provider or which is separately metered; (xxxiv) management fees in the aggregate in excess of those provided for in Section 4(b)(2)(I); (xxxv) rents payable under a ground or underlying lease of the Building; (xxxvi) costs of repairs or replacements due to fire, casualty or condemnation; (xxxvii) costs or expenses (including fines, penalties and legal fees) incurred by Landlord due to the violation or alleged violation by Landlord, its employees, agents, representatives or contractors, or other tenants or occupants of the Project, of any terms and conditions of this Lease or of the leases of other tenants of the Project, or of applicable Laws, that would not have been incurred but for such violation; (xxxviii) costs incurred by Landlord resulting from the gross negligence or willful misconduct of Landlord, its employees, agents, representatives or contractors; (xxxix) any interest or penalty charges incurred by Landlord due to late payments by Landlord resulting from Landlord's negligence; (xl) rentals and other related expenses incurred by Landlord in leasing air conditioning systems, elevators or other equipment or systems normally considered to be capital in nature; (xli) consulting costs and expenses incurred by Landlord except to the extent relating to the management or operation of the Project; and (xlii) any costs associated with the improvements required to be made by Landlord pursuant to this Lease, or the initial construction of the Project.
OFFICE LEASE AGREEMENT (BASIC LEASE INFORMATION) |
Page 6 |
OFFICE LEASE AGREEMENT (BASIC LEASE INFORMATION) |
Page 7 |
OFFICE LEASE AGREEMENT (BASIC LEASE INFORMATION) |
Page 8 |
OFFICE LEASE AGREEMENT (BASIC LEASE INFORMATION) |
Page 9 |
OFFICE LEASE AGREEMENT (BASIC LEASE INFORMATION) |
Page 10 |
OFFICE LEASE AGREEMENT (BASIC LEASE INFORMATION) |
Page 11 |
Tenant shall promptly notify Landlord of any such Permitted Transfer. Tenant shall remain liable for the performance of all of the obligations of Tenant hereunder, or if Tenant no longer exists because of a merger, consolidation, or acquisition, the surviving or acquiring entity shall expressly assume in writing the obligations of Tenant hereunder. Additionally, the Permitted Transferee shall comply with all of the terms and conditions of this Lease, including the Permitted Use, and the use of the Premises by the Permitted Transferee may not violate any other agreements affecting the Premises, the Building, the Complex, Landlord or other tenants of the Building or the Complex. No later than 30 days after the effective date of any Permitted Transfer, Tenant agrees to furnish Landlord with (A) copies of the instrument effecting any of the foregoing Transfers, (B) documentation establishing Tenant's satisfaction of the requirements set forth above applicable to any such Transfer, (C) evidence of insurance as required under this Lease with respect to the Permitted Transferee, and (D) evidence of compliance with the regulations of the Office of Foreign Asset Control ("OFAC") of the Department of the Treasury or any successor entity and any statute, executive order (including the September 24, 2001, Executive Order Blocking Property and Prohibiting Transactions with Persons Who Commit, Threaten to Commit, or Support Terrorism), or other governmental action relating thereto, including the name and address of the Permitted Transferee and any entities and persons who own, control or direct the Permitted Transferee. The occurrence of a Permitted Transfer shall not waive Landlord's rights as to any subsequent Transfers. "Tangible Net Worth" means the excess of total assets over total liabilities, in each case as determined in accordance with generally accepted accounting principles consistently applied ("GAAP"), excluding, however, from the determination of total assets all assets which would be classified as intangible assets under GAAP including goodwill, licenses, patents, trademarks, trade names, copyrights, and franchises. Any subsequent Transfer by a Permitted Transferee shall be subject to the terms of this Section 10.
OFFICE LEASE AGREEMENT (BASIC LEASE INFORMATION) |
Page 12 |
OFFICE LEASE AGREEMENT (BASIC LEASE INFORMATION) |
Page 13 |
OFFICE LEASE AGREEMENT (BASIC LEASE INFORMATION) |
Page 14 |
OFFICE LEASE AGREEMENT (BASIC LEASE INFORMATION) |
Page 15 |
OFFICE LEASE AGREEMENT (BASIC LEASE INFORMATION) |
Page 16 |
OFFICE LEASE AGREEMENT (BASIC LEASE INFORMATION) |
Page 17 |
OFFICE LEASE AGREEMENT (BASIC LEASE INFORMATION) |
Page 18 |
OFFICE LEASE AGREEMENT (BASIC LEASE INFORMATION) |
Page 19 |
OFFICE LEASE AGREEMENT (BASIC LEASE INFORMATION) |
Page 20 |
OFFICE LEASE AGREEMENT (BASIC LEASE INFORMATION) |
Page 21 |
OFFICE LEASE AGREEMENT (BASIC LEASE INFORMATION) |
Page 22 |
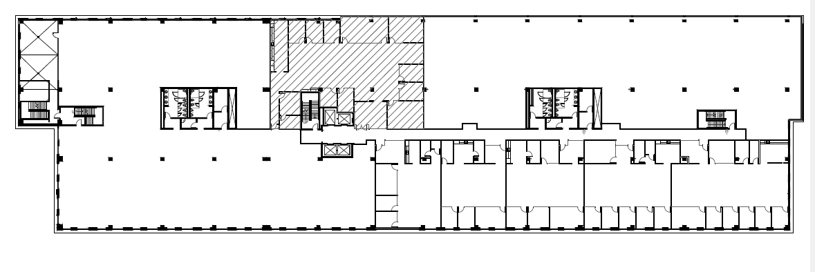
Exhibit A - Outline of Premises
Exhibit B - Description of the Land
Exhibit C - Parking
Exhibit D - Tenant Finish-Work
Exhibit E - Renewal Option
Exhibit X - Additional Provisions
OFFICE LEASE AGREEMENT (BASIC LEASE INFORMATION) |
Page 23 |
[THE REMAINDER OF THIS PAGE INTENTIONALLY LEFT BLANK.]
OFFICE LEASE AGREEMENT (BASIC LEASE INFORMATION) |
Page 24 |
LANDLORD AND TENANT EXPRESSLY DISCLAIM ANY IMPLIED WARRANTY THAT THE PREMISES ARE SUITABLE FOR TENANT'S INTENDED COMMERCIAL PURPOSE, AND TENANT'S OBLIGATION TO PAY RENT HEREUNDER IS NOT DEPENDENT UPON THE CONDITION OF THE PREMISES OR THE PERFORMANCE BY LANDLORD OF ITS OBLIGATIONS HEREUNDER, AND, EXCEPT AS OTHERWISE EXPRESSLY PROVIDED HEREIN, TENANT SHALL CONTINUE TO PAY THE RENT, WITHOUT ABATEMENT, DEMAND, SETOFF OR DEDUCTION, OR IMPLIED TERMINATION RIGHT, NOTWITHSTANDING ANY BREACH BY LANDLORD OF ITS DUTIES OR OBLIGATIONS HEREUNDER, WHETHER EXPRESS OR IMPLIED.
Upon the signature of both Landlord and Tenant, this Lease shall be deemed effective on the Effective Date.
LANDLORD: |
EPC-CW15, LLC, a Texas limited liability company
By: /s/ Brett Johansson Name: Brett Johansson Title: Manager
|
TENANT: |
MASTECH DIGITAL, INC., a Pennsylvania corporation By: /s/ Jennifer Lacey Name: Jennifer Lacey Title: General Counsel and Corporate Secretary |
OFFICE LEASE AGREEMENT (BASIC LEASE INFORMATION) |
Page 25 |

EXHIBIT A, Outline of Premises |
Page A-1 |
Tract I (Fee Simple):
DESCRIPTION, of a 9.000 acre tract of land situated in the Nancy Cousy Survey, Abstract No. 318 and the G.W. Laws Survey, Abstract No. 843, Dallas County, Texas and in Blocks 8463 and 8466, Official Block Numbers of the City of Dallas, Texas; said tract being all of those certain tracts of land described in Special Warranty Deeds to CW15 LAND, LTD. recorded in Document No. 202100384317 (hereinafter referred to as CW Tract 1), Document No. 202100384318 (hereinafter referred to as CW Tract 2) and Document No. 202100384319 (hereinafter referred to as CW Tract 3), all in the Official Records of Dallas County, Texas; said 9.000 acre tract being more particularly described as follows:
BEGINNING, at a 1/2-inch iron rod found for corner at the intersection of the southwest right-of-way line of Olympus Boulevard (a variable width right-of-way) and the northwest right-of-way line of Water Mill Road (a 66-foot wide right-of-way); said point being the easternmost corner of said CW Tract 2;
THENCE, South 31 degrees, 41 minutes, 21 seconds West, departing the said southwest line of Olympus Boulevard and along the said northwest line of Water Mill Road and a southeast line of said CW Tract 2, at a distance of 236.49 feet passing the northernmost corner of said CW Tract 1 and an east corner of said CW Tract 2, then continuing along the southeast line of said CW Tract 1, in all a total distance of 561.58 feet to a 5/8-inch iron rod with "PACHECO KOCH" cap set (hereinafter referred to as "IRS") for corner; said point being the southernmost corner of said CW Tract 1 and the easternmost corner of that certain tract of land described in Special Warranty Deed to CW FIRE STATION NO. 58, LTD recorded in Instrument No. 202100031070 in the Official Records of Dallas County, Texas;
THENCE, North 58 degrees, 18 minutes, 24 seconds West, departing the said northwest line of Water Mill Road and along the southwest line of said CW Tract 1 and the northeast line of said CW Fire Station No. 58 tract, at a distance of 15.59 feet passing a west corner of said CW Tract 1, a south corner of said CW Tract 2, the northernmost corner of said CW Fire Station No. 58 tract and the easternmost corner of that certain tract of land described in Special Warranty Deed to CW FIRE STATION NO. 58, LTD recorded in Instrument No. 202100031069, in said Official Records, then continuing along a southwest line of said CW Tract 2 and the northeast line of the last said CW Fire Station No. 58 tract, in all a total distance of 175.50 feet to an IRS for corner; said point being a reentrant corner of said CW Tract 2 and the northernmost corner of the last said CW Fire Station No. 58 tract;
THENCE, South 31 degrees, 41 minutes, 21 seconds West, along a southeast line of said CW Tract 2 and the northwest line of the last said CW Fire Station No. 58 tract, a distance of 285.00 feet to an IRS for corner in a northeast line of that certain tract of land retained by TXU Electric Delivery Company as an electric transmission easement in Special Warranty Deed to TXU Generation Company LP, TXU Mountain Creek Company LP and TXU Electric Delivery Company recorded in Volume 2001248, Page 11540 in the Deed Records of Dallas County, Texas; said point being the southernmost corner of said CW Tract 2 and the westernmost corner of the last said CW Fire Station No. 58 tract;
THENCE, North 58 degrees, 18 minutes, 24 seconds West, along the southernmost southwest line of said CW Tract 2 and the said northeast line of the TXU Electric Delivery Company transmission easement, at a distance of 232.44 feet passing the southernmost west corner of said CW Tract 2 and the southernmost corner of said CW Tract 3, then continuing along the southwest line of said CW Tract 3 and said northeast line of the TXU Electric Delivery Company transmission easement, in all a total distance of 356.76 feet to an IRS for corner; said point being the westernmost corner of said CW Tract 3;
THENCE, North 31 degrees, 41 minutes, 59 seconds East, along the northwest line of said CW Tract 3 and into, over and through part of those certain tracts of land described in Limited General Warranty Deed to Trammell Crow Company No. 43, Ltd. recorded in Instrument No. 200600072663 in the Official Public
Records of Dallas County, Texas, at a distance of 188.48 feet passing the northernmost corner of said CW Tract 3, a west corner of said CW Tract 2, a northeast line of said Trammell Crow Company No. 43, Ltd. tract and a southwest
EXHIBIT B, Description of the LandPage |
Page B-1 |
line of part of those certain tracts of land described in Special Warranty Deed to CW SHORELINE LAND, LTD. ("Shoreline Property") recorded in Instrument No. 201200024638, in said Official Public Records, then continuing along a northwest line of said CW Tract 2 and into, over and through said CW Shoreline Land, Ltd. (Shoreline Property) tract, in all a total distance of 486.73 feet to an IRS for corner; said point being a north corner of said CW Tract 2;
THENCE, continuing over, across and through said CW Shoreline Land Ltd. (Shoreline Property), the following eleven (11) calls:
South 58 degrees, 18 minutes, 01 seconds East, along a northeast line of said CW Tract 2, a distance of 198.02 feet to an IRS for corner; said point being a reentrant corner of said CW Tract 2;
North 31 degrees, 41 minutes, 59 seconds East, along a northwest line of said CW Tract 2, a distance of 146.70 feet to an IRS for corner; said point being a reentrant corner of said CW Tract 2;
North 58 degrees, 18 minutes, 01 seconds West, along a southwest line of said CW Tract 2, a distance of 12.00 feet to an IRS for corner; said point being a west corner of said CW Tract 2;
North 31 degrees, 41 minutes, 59 seconds East, along a northwest line of said CW Tract 2, a distance of 27.57 feet to an IRS for corner; said point being a reentrant corner of said CW Tract 2;
North 58 degrees, 18 minutes, 01 seconds West, along a southwest line of said CW Tract 2, a distance of 164.46 feet to an IRS for corner; said point being a south corner of said CW Tract 2;
North 01 degrees, 41 minutes, 59 seconds East, along a west line of said CW Tract 2, a distance of 23.10 feet to an IRS for corner; said point being a reentrant corner of said CW Tract 2;
North 58 degrees, 18 minutes, 01 seconds West, along a southwest line of said CW Tract 2, a distance of 115.48 feet to an IRS for corner; said point being a south corner of said CW Tract 2;
North 01 degrees, 41 minutes, 59 seconds East, along a west line of said CW Tract 2, a distance of 69.29 feet to an IRS for corner; said point being a reentrant corner of said CW Tract 2;
North 58 degrees, 18 minutes, 01 seconds West, along a southwest line of said CW Tract 2, a distance of 23.10 feet to an IRS for corner; said point being a south corner of said CW Tract 2;
North 01 degrees, 37 minutes, 41 seconds East, along a west line of said CW Tract 2, a distance of 29.89 feet to an IRS for corner; said point being a west corner of said CW Tract 2;
North 31 degrees, 41 minutes, 59 seconds East, along a northwest line of said CW Tract 2, a distance of 79.76 feet to an IRS for corner in the said southwest line of Olympus Boulevard; said point being the northernmost corner of said CW Tract 2;
THENCE, South 58 degrees, 17 minutes, 59 seconds East, along the said southwest line of Olympus Boulevard and the northernmost northeast line of said CW Tract 2, a distance of 710.29 feet to the POINT OF BEGINNING;
CONTAINING, 392,033 square feet or 9.000 acres of land, more or less.
EXHIBIT B, Description of the LandPage |
Page B-2 |
EXHIBIT C, Parking |
Page C-1 |
(a) Preparation and Delivery. On or before the date which is 30 days following the date on which this Lease is fully executed by both Landlord and Tenant, Landlord shall cause to be prepared final working drawings of all improvements to be installed in the Premises and deliver the same to Tenant for its review and approval (which approval shall not be unreasonably withheld, delayed or conditioned).
(b) Approval Process. Tenant shall notify Landlord whether it approves of the submitted working drawings within three business days after Landlord's submission thereof. If Tenant disapproves of such working drawings, then Tenant shall notify Landlord thereof specifying in reasonable detail the reasons for such disapproval, in which case Landlord shall, within five business days after such notice, revise such working drawings in accordance with Tenant's objections and submit the revised working drawings to Tenant for its review and approval. Tenant shall notify Landlord in writing whether it approves of the resubmitted working drawings within one business day after its receipt thereof. This process shall be repeated until the working drawings have been finally approved by Landlord and Tenant. If Tenant fails to notify Landlord that it disapproves of the initial working drawings within three business days (or, in the case of resubmitted working drawings, within one business day) after the submission thereof, then Tenant shall be deemed to have approved the working drawings in question. Any delay caused by Tenant's unreasonable withholding of its consent or delay in giving its written approval as to such working drawings shall constitute a Tenant Delay Day (defined below). If the working drawings are not fully approved (or deemed approved) by both Landlord and Tenant by the 15th business day after the delivery of the initial draft thereof to Tenant, then each day after such time period that such working drawings are not fully approved (or deemed approved) by both Landlord and Tenant shall constitute a Tenant Delay Day.
(c) Landlord's Approval; Performance of Work. If any of Tenant's proposed construction work will affect the Building's Structure or the Building's Systems, then the working drawings pertaining thereto must be approved by the Building's engineer of record. Landlord's approval of such working drawings shall not be unreasonably withheld, provided that (1) they comply with all Laws, (2) the improvements depicted thereon do not adversely affect (in the reasonable discretion of Landlord) the Building's Structure or the Building's Systems (including the Building's restrooms or mechanical rooms), the exterior appearance of the Building, or the appearance of the Building's common areas or elevator lobby areas, (3) such working drawings are sufficiently detailed to allow construction of the improvements in a good and workmanlike manner, and (4) the improvements depicted thereon conform to the rules and regulations promulgated from time to time by Landlord for the construction of tenant improvements (a copy of which has been delivered to Tenant). As used herein, "Construction Drawings" means the final working drawings approved by Landlord, as amended from time to time by any approved changes thereto, and "Work" means all improvements to be constructed by Landlord in accordance with and as indicated on the Construction Drawings. Landlord's approval of the Construction Drawings shall not be a representation or warranty of Landlord that such drawings are adequate for any use or comply with any Law, but shall merely be the consent of Landlord thereto. Tenant shall, at Landlord's request, sign the Construction Drawings to evidence its review and approval thereof. After the Construction Drawings have been approved, Landlord shall cause the Work to be performed in substantial accordance with the Construction Drawings, using contractors and subcontractors selected by Landlord.
EXHIBIT D, Tenant Finish-Work |
Page D-1 |
EXHIBIT D, Tenant Finish-Work |
Page D-2 |
EXHIBIT D-1
SPACE PLANS

EXHIBIT D, Tenant Finish-Work |
Page D-3 |
EXHIBIT D-2
SCOPE OF WORK
Project Scope
Demolition
Drywall/Acoustical
Doors/Frames/Hardware
Door Frames: RACO “Classic Prestige”, or Alumax “Falcon”, or Wilson Partitions “Projected Profile”. Clear aluminum.
Doors: Stained veneer, slip matched, stained finish to match existing.
Mortise Sets: Sargent 8100 Series, LNH Lever Trim
US26, Polished Chrome
Hinges: Hager, McKinney, or Stanley
4 ½” x 4 ½”, 5-Knuckle, non-removable pin at corridors
4 ½” x 4 ½”, 5-Knuckle, non-rising pin at corridors
US26, Polished Chrome
Closer: Yale to match existing
Stops: Floor or wall mounted stops in polished or satin stainless steel.
Glass and Glazing
Paint & Wallcovering
EXHIBIT D, Tenant Finish-Work |
Page D-4 |
Flooring
Millwork
Blinds
Fire Protection
Plumbing- Kitchen Equipment
HVAC
Electrical
Life Safety/Fire Alarm
Scope Exclusions
Additional Appliances to be provided by Tenant.
EXHIBIT D, Tenant Finish-Work |
Page D-5 |
EXHIBIT E
RENEWAL OPTION
Tenant's rights under this Exhibit shall terminate if (a) this Lease or Tenant's right to possession of the Premises is terminated, (b) Tenant assigns any of its interest in this Lease (excluding Permitted Transfers), (c) Tenant fails to timely exercise its option under this Exhibit, time being of the essence with respect to Tenant's exercise thereof, or (d) Landlord determines, in its reasonable discretion, that Tenant's financial condition or creditworthiness has materially deteriorated since the date of this Lease such that Tenant's ability to meet the financial obligations associated with an extension of this Lease is questionable.
EXHIBIT E, Renewal Option |
Page E-1 |
EXHIBIT X
ADDITIONAL PROVISIONS
EXHIBIT X, Additional Provisions |
Page X-1 |
EXHIBIT X, Additional Provisions |
Page X-2 |
EXHIBIT X, Additional Provisions |
Page X-3 |